satis@fbmaluminyum.com

Rüzgar Kırıcı

Rüzgar Kırıcı
Rüzgar Kırıcı

Rüzgar Kırıcı

Rüzgâr Kırıcı Sistem; otel, kafe, restoran, konut, teras, alışveriş merkezleri gibi mekânlarda rüzgârın olumsuz etkilerinden korunmanızı sağlayarak yaşam alanlarını daha konforlu ve vazgeçilmez hale getirir. Rüzgar Kırıcı Sistem; rüzgârlı havalarda hava akışını oturum seviyesinden yukarıya taşıyarak rüzgarın olumsuz etkilerini azaltır.

Manuel Rüzgar Kırıcı nerede kullanılır?

Son yılların mimari anlamda en popüler ürünlerinden bir tanesi olan Rüzgar Kırıcı sistemi, kafe, restoran ve alışveriş merkezleri gibi işletmelerin oldukça sık tercih ettiği mimari bir çözümdür.

Manuel Rüzgar Kırıcı Çeşitleri ve Özellikleri

Manuel Rüzgar Kırıcı, seviyesi ağırlık dengeleme sistemi ile hareketli panelin yukarı kaldırılması ile rüzgarın etkisi azaltılır. Yenilikçi tasarım, konfor ve modern yapısı ile esnek bir kullanım alanı sağlar.

Pistonlu Rüzgar Kırıcı, seviyesi piston ile hareketli panelin yukarı kaldırılması ile rüzgarın etkisi azaltılır.

Motorlu Rüzgar Kırıcı, seviyesi tubular motor ve uzaktan kumanda ile hareketli panelin yukarı kaldırılması ile rüzgarın etkisi azaltılır.

Manzaradan ödün vermeden kullanım ve koruma sağlar.

Sabitleme seçeneğinin yanı sıra tekerlek ve saksılıklı kullanımıyla istediğiniz alanın iklimini de kontrol edebilirsiniz.

Rüzgar Kırıcı Teknik Özellikleri


Manuel rüzgar kırıcı genişliği 200 cm'ye kadar yapılabilmekte olup, hareketli cam paneli açık konumda yerden 180 cm yüksekliğe kadar rüzgar koruması sağlamaktadır. 6mm TEMPERLİ cam kullanılmaktadır.

Pistonlu rüzgar kırıcı genişliği 180 cm'ye kadar yapılabilmekte olup, hareketli cam paneli açık konumda yerden 180 cm yüksekliğe kadar rüzgar koruması sağlamaktadır. 6mm TEMPERLİ cam kullanılmaktadır.

Motorlu rüzgar kırıcı genişliği 260 cm'ye kadar yapılabilmekte olup, hareketli cam paneli açık konumda yerden 180 cm yüksekliğe kadar rüzgar koruması sağlamaktadır. 8mm ve 10mm TEMPERLİ cam kullanılmaktadır.

Rüzgâr kırıcı, tek başına bir modül olarak veya açık alanlarda modüller yan yana yerleştirildiğinde ayırıcı olarak görev yapar.

Rüzgarlık camları temperli camdan üretildiği için kırılma durumunda insan sağlığına zarar gelmesini önler. Ayrıca temperli cam kırılmaya karşı 5 kat daha dayanıklıdır.

Satine, lamine veya renkli cam ile yaşam alanının mahremiyetini artırabilirsiniz.

Temperli Cam


Silinebilir Giyotin Cam

Temperli cam; ısıl işlem sayesinde mukavemeti artırılmış, kırılma esnasında insan sağlığına zarar vermeyecek kadar küçük parçalara ayrılan hareket sistemlerde kullanılması zorunlu bir emniyet sınıfı cam ürünüdür.

Kırılmalara karşı dayanıklı

Kırılma durumunda insan sağlığını tehdit edecek unsurlar içermeyen

Yüksek derecede ışıl işlem ile mukavemet kazandırılmış

Normal cama göre 5 kat daha dayanıklı



Satış Sonrası Hizmet

Sektöre yön veren bir markanın güveni ile satış sonrası teknik destek sunulmaktadır.

Üretim ve Teslimat

Keşif ve projelendirme aşamasının ardından üretimi yapılan ürünler fabrikadan teslim edilmektedir. Müşteri tercihine göre montaj hizmeti bulunmaktadır.

Ücretsiz Keşif

Ücretsiz keşif ve teknik ofis ile mimari danışmanlık hizmeti verilmektedir.

Rüzgar Kırıcı / Referanslar

Rüzgar Kırıcı
Rüzgar Kırıcı
Rüzgar Kırıcı
Rüzgar Kırıcı
Rüzgar Kırıcı
Rüzgar Kırıcı
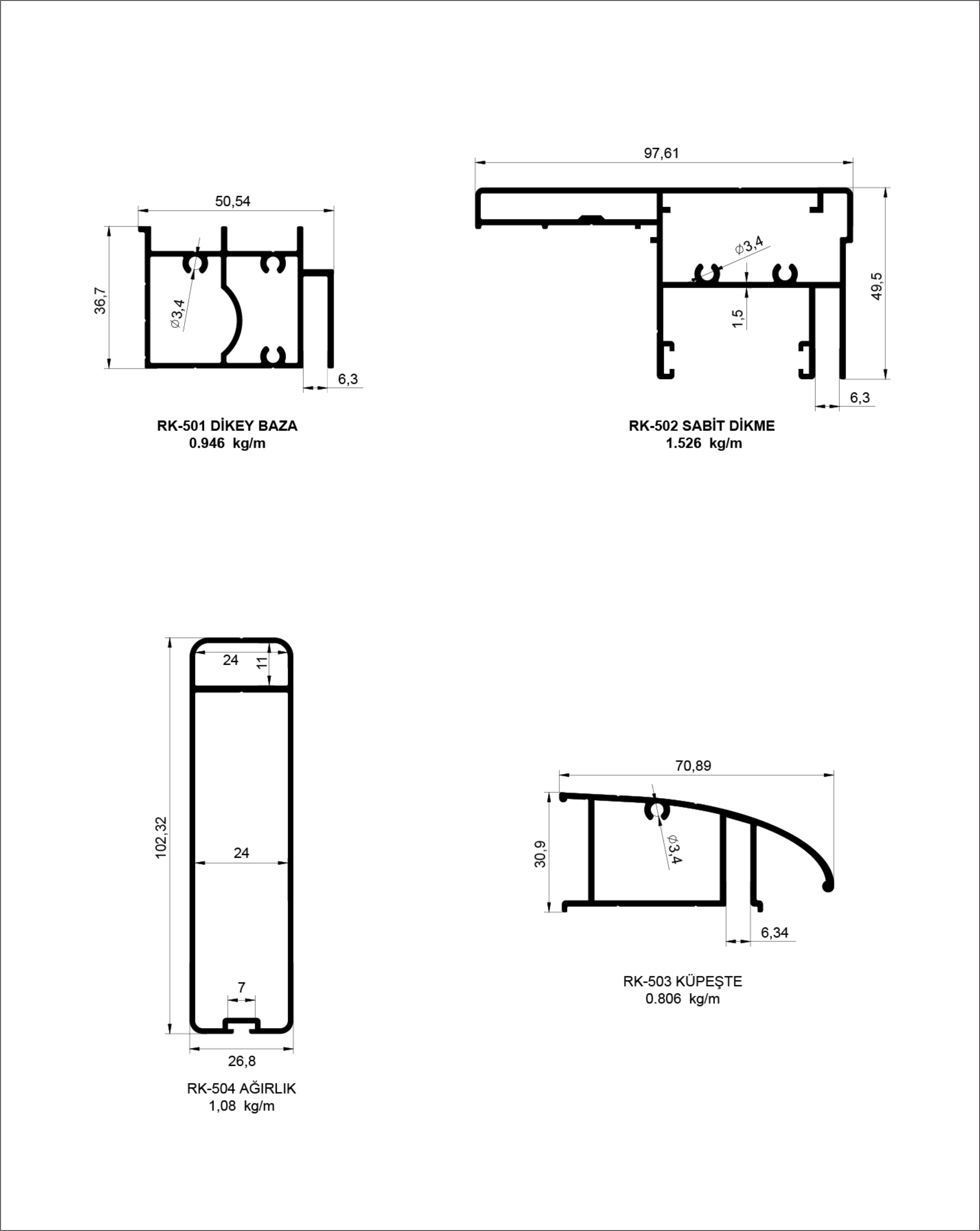
Manuel Rüzgar Kırıcı Profilleri

Manuel Rüzgar Kırıcı
Manuel Rüzgar Kırıcı Montaj Şeması

Manuel Rüzgar Kırıcı